Tutorial: How to create your own borders
Goal
Creating your own borders.
Steps
Start a new schematic file.

Select.

Draw a rectangle (size doesn’t matter for now).
Select the rectangle and select Properties.

You will see this window appear.

Switch on Expert mode.

Now you see on the right the X and Y coordinates.
Go to X1 and Y1 and enter 0 for both.

Now change X2 and Y2 to the desired (outside) dimensions.
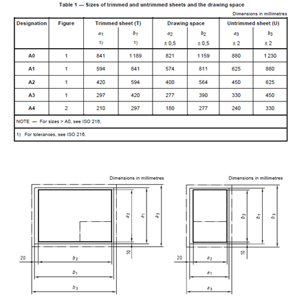
In this case an A3 size border.
According to ISO 5457 this should be 420x297 mm.


To set the drawing area again draw a rectangle within the existing rectangle.
The size again doesn’t matter.

select the new rectangle and select Properties.
Select your starting point and your end point (See the table above).

Use Ok.

Now save the file in the Border folder.
For example C:\Users\Marco\Paro\Borders\Borders


Use the Save button.
Now go to Tools -> Tables -> Paper sizes

Select the ISO A3 file.

Now use New, the ISO A3 file will be copied and some information is already there.
This window appears.

Now you can change the Information.
For example change the Name to A3 Border-demo.
At Border name select the 3 dots and select in the appeared window Browse.

Browse to the border folder and select the file earlier created.

Use Open. You will see this message.

Use Yes.
The drawing area is the maximum area where components / symbols and so on can be placed.
If you place something outside this area it will not be drawn at your print.

Use Ok.

To create a border file you also can download an existing one.
Go to.

Select the 3 dots at Drawing header.

Again select the 3 dots.

This window will appear.

Select a file with the globe in front. And use the arrow.

Change the name and press ok.

Close all windows and go to open.

Browse to the border folder and select the downloaded file to open.

Now you can follow the previous steps to make your own border.